Walter Kohne Architekt

Projekte

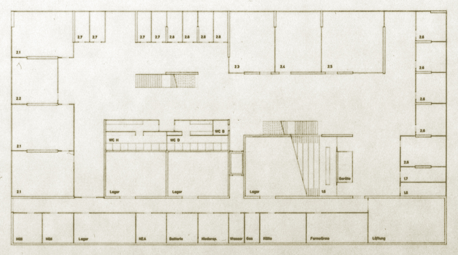
Hörsaalgebäude der Hochschule Weihenstephan

Walter Kohne  Architekt

Untergeschoss