Walter Kohne Architekt

Projekte

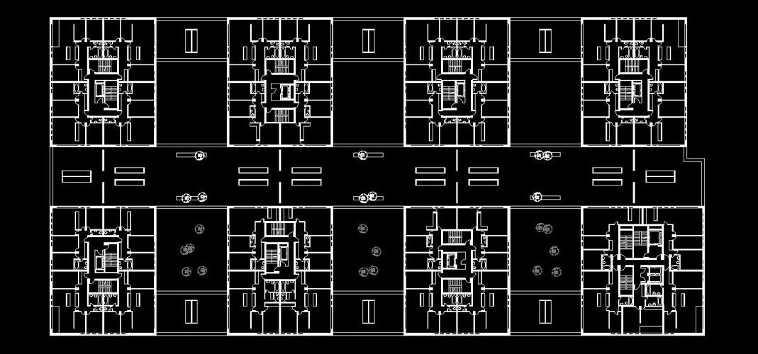
Mixed Use Development Millfield, Cork, Irland

Walter Kohne  Architekt

Ebene 3