Walter Kohne Architekt

Projekte

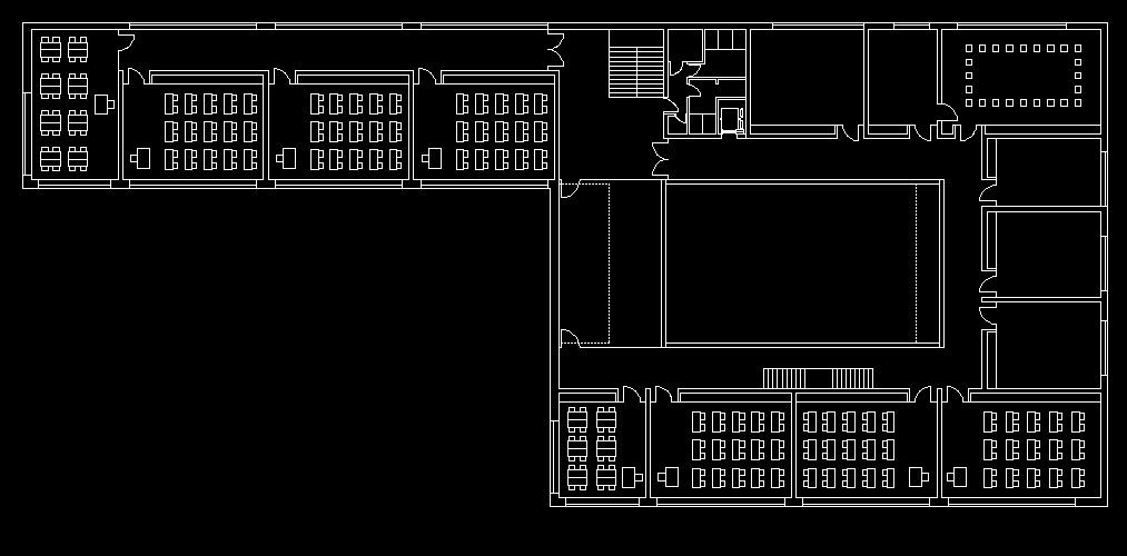
Grundschule mit Hort im Bornstester Feld, Potsdam

Walter Kohne  Architekt

1. Obergeschoss Schule