Walter Kohne Architekt

Projekte

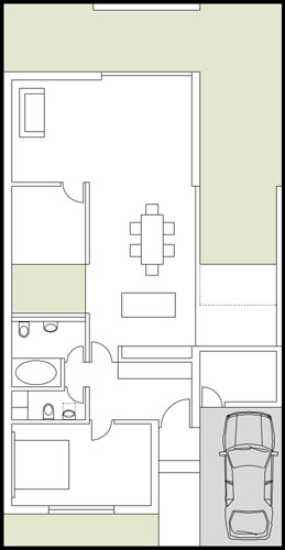
Konzeptstudie Doppelhaus

Typ 1.1

Walter Kohne  Architekt